SPEC
| 物件名 | 香林坊仙石ビル |
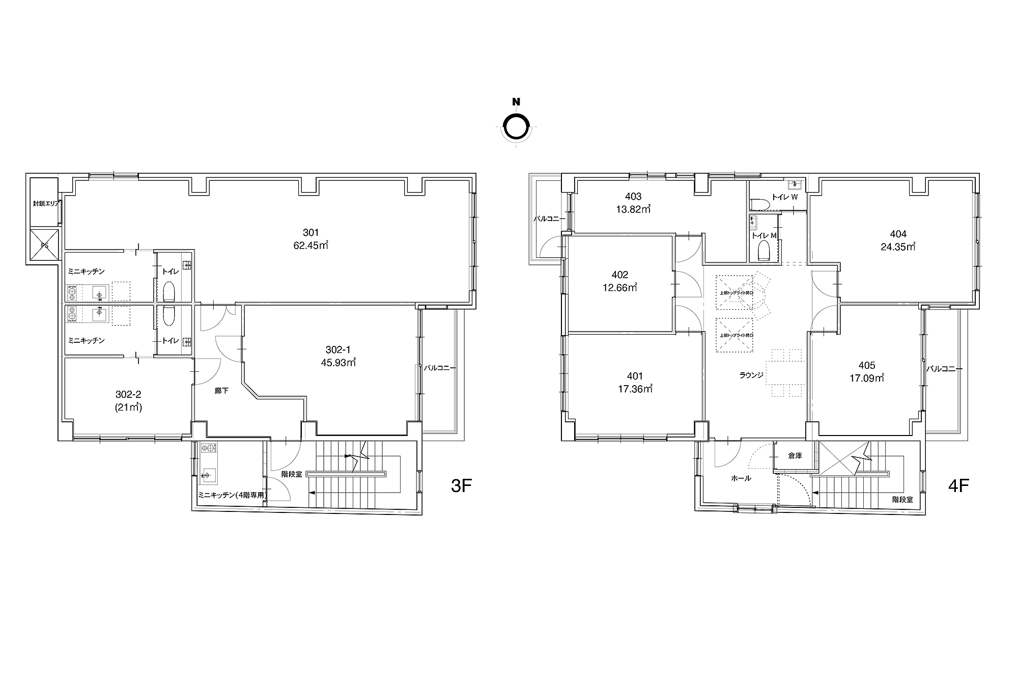
| 構造 | 鉄筋コンクリート造陸屋根地上4階建 |
| 築年月 | 昭和53年1月 |
| 契約の種類 | 定期建物賃貸借契約 2年 |
| 設備 | 〔共用部〕
自転車置き場(無料)、ゴミ置場(24時間ゴミ出し可)、集合ポスト、集合サイン、共用ラウンジ 〔専有部〕 ミニキッチン、トイレ、エアコン、WiFi、 |
| 備考 | 敷地内禁煙、法人登記可、エレベーターなし |
ACCESS
| 所在地 | 石川県金沢市香林坊1-2-38 |
| 交通 | 金沢駅よりバス15分「香林坊」下車 |
INFORMATION
| 物件名 | 香林坊仙石ビル |
| 構造 | 鉄筋コンクリート造陸屋根地上4階建 |
| 築年月 | 昭和53年1月 |
| 契約の種類 | 定期建物賃貸借契約 2年 |
| 設備 | 〔共用部〕
自転車置き場(無料)、ゴミ置場(24時間ゴミ出し可)、集合ポスト、集合サイン、共用ラウンジ 〔専有部〕 ミニキッチン、トイレ、エアコン、WiFi、 |
| 備考 | 敷地内禁煙、法人登記可、エレベーターなし |
| 所在地 | 石川県金沢市香林坊1-2-38 |
| 交通 | 金沢駅よりバス15分「香林坊」下車 |